ウッドデッキの庭
はじめは何もなかったY様邸。
抜いてもすぐ生える雑草に悩まされていました。
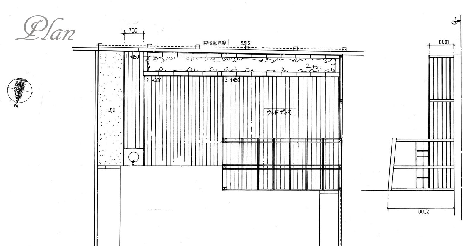
お庭全体を階段状のウッドデッキにして、
こどもたちが走り回って遊べる空間になりました。
まぶしくてカーテンをしたままになっていたリビングの光を調整できるように、パーゴラを設けて、
パーゴラに設置したシェードカーテンで、
季節ごとに光を調整できるように。
すべてをウッドデッキだけにしてしまうのではなく、
管理のしやすい、ベンチのように腰掛けられる高さに
花壇を設置し、緑やお花も楽しめる空間に
なっています。
| 物件名 |
Y様邸 |
| 所在地 |
名古屋市名東区 |
| 完工年月 |
2014年7月 |
| 工事費 |
― |