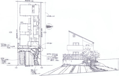
然の小道

枕木を使ったナチュラルなアプローチにしたい。
そんなN様のご希望を受けて、自然の小道を歩くようなアプローチをご提案。


アプローチ部分は、あえて舗装はせずに土を残し
て、踏圧に強いグランドカバーのリピアを植栽し、
花と緑のあふれる自然の小道のようなアプローチ
になりました。

物件名  N様邸
所在地  名古屋市緑区
完工年月  2012年3月
工事費   ―

戻る